Trong kiến trúc phong thủy nhà ở truyền thống Á Đông, bếp là nơi nấu nướng, giữ lửa gia đình, không chỉ đơn thuần là không gian chức năng mà còn là một trung tâm năng lượng, ảnh hưởng sâu sắc đến sức khỏe, tài vận và hòa khí gia đình. Việc đặt bếp đúng vị trí, tọa hung, hướng cát, là nguyên tắc quan trọng để “hóa hung khí, đón cát lợi”. Bài viết này sẽ dẫn dắt bạn qua các lý luận phong thủy, cách định vị tọa hung hướng cát cho bếp, để giúp quý gia chủ lựa chọn vị trí đặt bếp từ (hoặc bếp nói chung) sao cho vừa hợp lý về công năng, vừa hợp phong thủy.
Ý nghĩa phong thủy
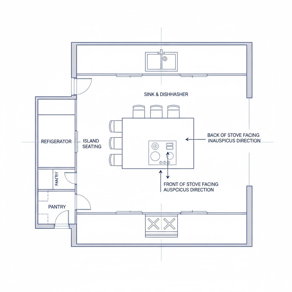
Tọa Hung: tức là đặt phần lưng của bếp, tức phía sau bếp (vách, tường, khối chắn), hướng vào phương vị được xem là hung khí trong bản đồ bát quái, bát trạch của ngôi nhà.
Hướng Cát: tức là hướng nhìn ra trước của bếp (phía người đứng nấu nhìn ra) nên hướng tới các phương vị cát lợi, nơi hội tụ sinh khí, vượng khí, mang lại may mắn và thịnh vượng.
Nguyên lý này dựa vào quan điểm không quay mặt vào hung hướng, không quay lưng vào cát hướng, tức chọn sao cho lưng bếp quay về nơi xấu (hung), mặt bếp hướng về nơi tốt (cát). Cách làm này được cho là sẽ đẩy khí xấu ra phía sau, đón khí tốt ở phía trước, giúp gia đạo thịnh vượng, khoan hòa.
Căn cứ truyền thống & thực hành
Trong các sách phong thủy truyền thống như “Kinh Dịch”, “Lạc thư”, “Hà đồ” hay “Tọa Càn hướng Khảm” trong nhà bếp, các bậc thầy phong thủy xưa cho rằng khi bố trí vị trí bếp, không nên đặt lưng bếp hướng ra cửa lớn, cửa phụ, cửa sổ lớn vì dễ “tọa cát hướng hung” ngược lại, hút khí xấu vào trong. Cũng không nên đặt bếp đối diện nhà vệ sinh, đối diện cửa sổ lớn, cửa ra vào.
Khi chọn tọa hung hướng cát, người ta sẽ đầu tiên xác định cung tọa (nơi đặt lưng bếp) là phương vị hung trong bát trạch hoặc lục vận của căn nhà; sau đó chọn hướng nhìn của bếp (hướng cửa hay mặt trước của bếp) về phía cát vị, tức các phương vị mang lợi ích về tài lộc, sức khỏe, quan hệ hôn nhân.

Hình ảnh chỉ mang tính chất minh hoạ
Bước 1: Xác định hướng tốt cho ngôi nhà & bát trạch
Gia chủ cần xác định trước hướng nhà (hướng cổng chính) và quẻ trạch gia chủ (như Đông tứ mệnh, Tây tứ mệnh) để biết đâu là phương vị cát – hung trong bát trạch của mình. Ví dụ, nếu gia chủ thuộc Đông tứ mệnh thì các hướng Đông, Nam, Bắc, Đông Nam là hướng cát; còn Tây tứ mệnh thì Tây, Tây Bắc, Tây Nam, Đông Bắc là hướng cát.
Bước 2: Chọn tọa vị bếp (lưng bếp)
Sau khi biết các hướng cát và hung trong bát trạch, xác định lưng bếp (tọa vị) nên đặt về hướng hung (một trong những hướng “xấu”) để hóa giải hung khí. Ví dụ:
Nếu hướng cát là Đông, Nam, Bắc, Đông Nam, thì lưng bếp có thể đặt về Tây, Tây Bắc, Tây Nam, Đông Bắc, những hướng nghịch lại, là tọa hung.
Nếu hướng cát là Tây, Tây Bắc, Tây Nam, Đông Bắc, thì lưng bếp đặt về Đông, Nam, Bắc, Đông Nam – làm tọa hung.

Hình ảnh chỉ mang tính chất minh hoạ
Bước 3: Hướng đặt mặt (hướng nhìn bếp)
Sau khi lưng bếp (tọa) đã đặt về hướng hung, mặt bếp nên quay về hướng cát để đón vượng khí. Ví dụ, nếu lưng bếp đặt về Tây, thì mặt bếp có thể hướng về Đông hoặc Đông Nam nếu đó là hướng cát hợp mệnh gia chủ.
Bước 4: Kiểm tra phản xạ & đối lưu
Khi xác định vị trí, cần đảm bảo:
Tránh để cửa, cửa sổ, lối đi lớn đối diện bếp trực tiếp (dẫn khí tốt ra mất).
Tránh để sau lưng bếp không có chỗ tựa vững chắc, nên có vách tường rắn chắn sau bếp.
Không đặt bếp đối diện bồn rửa, cửa nhà vệ sinh, thang máy, thang bộ, vì những nơi này mang khí không sạch hoặc thoát khí mạnh.
Đảm bảo bếp có đường đi thoáng khí, nhưng không để gió thổi mạnh chiếu trực tiếp vào mặt bếp.
Bếp từ, bếp điện, bếp linh hoạt
Trong bối cảnh nhà bếp hiện đại như dòng bếp từ, bếp điện âm, bếp kết hợp, nguyên lý phong thủy không thay đổi: bạn vẫn cần xác định tọa hung – hướng cát cho vị trí đặt mặt bếp. Ví dụ, nếu bạn muốn đặt bếp từ âm trong đảo bếp hoặc sát tường, hãy đảm bảo lưng bếp (vách sau) đặt về hướng hung, mặt bếp xoay về hướng cát, đồng thời tránh đặt quạt hút, cửa sổ, lối thông gió ngay phía trước bếp.
Lựa chọn vị trí trong phòng bếp
Gần bức tường kiên cố phía sau: làm mảng lưng tựa, giúp bếp vững chãi và phong thủy ổn định.
Không quay mặt ra cửa chính / cửa phụ: tránh tà khí xông thẳng vào bếp.
Không đặt ở trung cung nhà (giữa nhà không có phương vị rõ ràng): vì trung cung là vị trí yếu, không hợp để đặt bếp trọng tâm.
Không đặt bếp sát vào tường kính lớn / cửa sổ rộng: nếu không thể làm khác, căn chỉnh sao cho phía sau có chấn song chắn, chắn chắn gió lùa.
Ví dụ: nếu căn hộ hướng Nam-E (Nam – Đông Nam là cát), bạn có thể đặt lưng bếp về Tây Bắc (tọa hung) và mặt bếp hướng về Đông Nam, kết hợp với tường sau làm chấn vững, tránh để gió lùa trực tiếp từ cửa sổ phía Đông Nam thổi vào mặt bếp.

Hình ảnh chỉ mang tính chất minh hoạ
Hóa giải hung khí: lưng bếp quay về hướng xấu, giúp tiêu trừ ảnh hưởng tiêu cực từ hướng hung.
Đón vượng khí: mặt bếp hướng về phía tốt giúp khí sinh mạnh tác động vào năng lượng tích cực cho gia chủ.
Ổn định tài vận & sức khỏe: phong thủy tốt kéo theo khí trường tích cực, hỗ trợ thịnh vượng, sức khỏe, gia hòa.
Cân bằng yếu tố hiện đại & phong thủy: vừa giữ tính tiện dụng của bếp hiện đại, vừa không phá vỡ cấu trúc năng lượng căn nhà.
Nhà hình ống, chung cư nhỏ
Với nhà ống hoặc căn hộ chung cư, không gian nhà bếp thường bị bó hẹp. Trong trường hợp không thể bố trí lưng bếp đúng hướng hung, có thể dùng bình phong, vách chắn, cây phong thủy để tạo chỗ tựa cho lưng bếp, đồng thời điều hướng mặt bếp về hướng cát.
Bếp đảo hoặc bếp giữa phòng
Trường hợp bếp đặt ở đảo giữa bếp (không dựa tường), đây là tình huống rất nhạy cảm – vì lưng bếp không có chỗ tựa. Giải pháp:
Thêm vách chắn thấp phía sau đảo bếp để tạo lưng.
Xác định hướng mặt đảo bếp theo quy tắc hướng cát.
Hạn chế đặt đảo bếp quay mặt ra cửa lớn, cửa ra vào.
Tránh đặt đảo bếp ngay trung tâm không gian nếu không có sự cân xứng phong thủy.

Hình ảnh chỉ mang tính chất minh hoạ
Khi không xác định rõ hướng
Nếu hướng nhà hoặc quẻ trạch gia chủ không rõ, bạn có thể:
Dùng la bàn phong thủy để xác định hướng Bắc thực tế, căn cứ bát trạch.
Lấy hướng mở cửa chính của nhà hoặc ban công làm tham chiếu để chọn hướng cát cho mặt bếp.
Trong trường hợp xấu nhất (khó xác định), ưu tiên đặt bếp sao cho lưng có chỗ tựa, mặt bếp không đối diện cửa trực tiếp, và sử dụng vật phong thủy bổ trợ như gương phản chiếu, chấn phong thủy.
Việc bố trí tọa hung – hướng cát cho bếp không chỉ là một nguyên tắc truyền thống mang yếu tố tín ngưỡng, mà còn là cách hài hoà giữa phong thủy và thiết kế hiện đại. Khi bạn chọn được lưng bếp quay về hướng hung, mặt bếp quay về hướng cát, đồng thời đảm bảo các yếu tố kỹ thuật (ấm áp, thông thoáng, không bị gió lùa quá mạnh, có tường tựa phía sau), thì bếp không chỉ là nơi nấu ăn mà còn là nguồn sinh khí, trung tâm năng lượng làm nên sự thịnh vượng cho gia đình.